+55 48 99145-0077
contato@imobiliariapraiadorosa.com.br

Terreno na Praia da Silveira

Silveira

R$800.000,00
Tipo de Propriedade TERRENOS
Tamanho 700 M²

Descrição

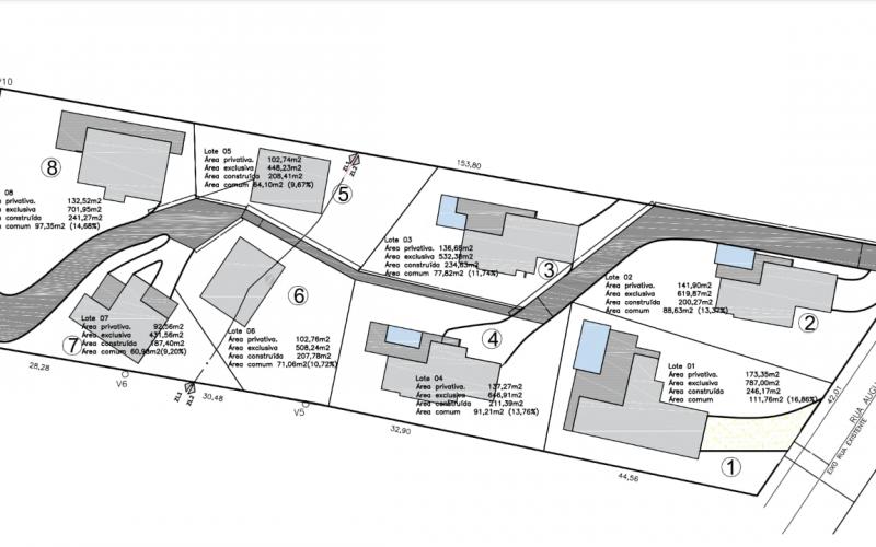
Terreno em condomínio para 8 casas no morro da Praia do Silveira, vista para a cidade de Garopaba.

Opção de compra do terreno ou da casa pronta.  Matrículas individuais.

Dois acessos, casas 1, 2, 3 e 4 pela Rua Augusto Germano Wilke, casas 5, 6, 7 e 8 pela Rua da Pedreira.

As casas da Rua Augusto Germano Wilke, estão a 700 metros da praia e as casas da Rua da Pedreira a 1350 metros.

Os projetos das casas já estão aprovados e prontos para iniciar a obra.  Possíveis alterações no projeto, desde que mantido o estilo arquitetônico do condomínio.

Condomínio será entregue com pórticos nas entradas, portões eletrônicos, acessos concretados a todos os terrenos, estruturas de água e luz até cada terreno prontas e paisagismo.

Preço promocional para as unidades 06 e 07.

Unidades 02,03, 06 e 07 disponíveis.

48 99145 0077
contato@imobiliariapraiadorosa.com.br

Social Media Share

Agente de contato

Propriedades relacionadas

Comparar